Правила форума Clear

92A производство 2011>>2018 (K;L) P057B00 Датчик хода педали тормоза, недостоверный сигнал

07.06.2021, 15:13   #1
Владимир Маркин
Аватар для Владимир Маркин
Условия диагностики
Педаль тормоза не нажата
Зажигание вкл
Движение со стабильной скоростью, нога не должна находиться на педали тормоза

Условия регистрации неисправности
Запомненное смещение проверяется не достоверность
Измеренное значение запомненного смещения > 90 % или < 55 %
Длительность периода сигнала ШИМ меньше нормы
Скважность сигнала ШИМ больше нормы
Скважность сигнала ШИМ меньше нормы

Контролируемый компонент или система
Датчик хода педали тормоза

Указания по поиску неисправностей
Соблюдать установочную калибровку датчика хода педали тормоза в соответствии с инструкциями по установке
Проверить монтажное положение и юстировку датчика, при необходимости выполнить соответствующую корректировку
Выполнить проверку проводов.
Замена датчика

Функциональные ограничения
Другое ощущение от торможения с увеличенным свободным ходом педали
02.09.2021, 14:13   #2
Sivov44
Можно инструкцию по установке датчика прислать.
02.09.2021, 14:47   #3
Владимир Маркин
Аватар для Владимир Маркин
Сообщение от Sivov44 Посмотреть сообщение
Можно инструкцию по установке датчика прислать.
https://forum.cayservice.ru/showthre...037#post146037
01.10.2023, 13:44   #4
Serg124
Сообщение от Владимир Маркин Посмотреть сообщение
https://forum.cayservice.ru/showthre...037#post146037
Не та инструкция, на гибриде датчик в салоне, а есть инструкция для гибрида?
02.10.2023, 21:52   #5
Владимир Маркин
Аватар для Владимир Маркин
Сообщение от Serg124 Посмотреть сообщение
на гибриде датчик в салоне
Есть фото этого датчика?
12.12.2023, 15:52   #6
AUTOBODY Repair
Добрый день!
Подскажите пожалуйста где находится датчик положения педали тормоза на кайен 958 гибрид,
(Необходим для имитации нажатия педали, при подключения сигнализации с автозапуском)
Подключали в монтажном блоке по рекомендациям по установке, без результатно. Стопы загораются при попытке запуска, но запуск не производится, выходит сообщение НАЖМИТЕ ТОРМОЗ
Методом исключения попытались найти.

В салоне на педали тормоза датчик отключили, также отключили датчик на гтц, но при запуске просит нажать педаль, нажимаем - запускается.
12.12.2023, 22:00   #7
Владимир Маркин
Аватар для Владимир Маркин
Сообщение от AUTOBODY Repair Посмотреть сообщение
Добрый день!
Добрый вечер

Сообщение от AUTOBODY Repair Посмотреть сообщение
Подскажите пожалуйста где находится датчик положения педали тормоза на кайен 958 гибрид
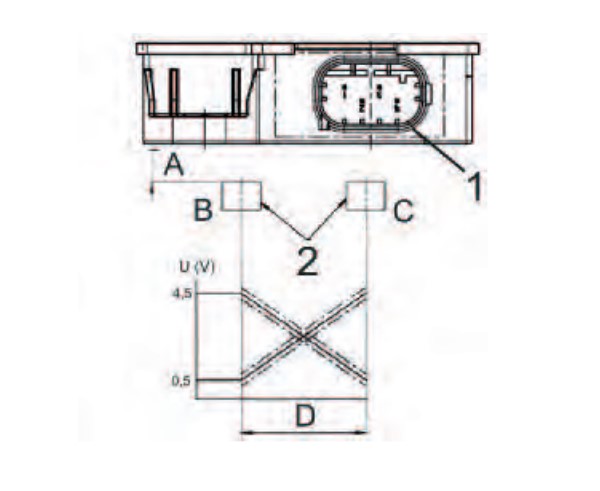
Датчик хода педали тормоза
Интенсивность желаемого водителем замедления регистрируется датчиком хода педали тормоза, установленным на педальном узле, и в качестве параметра учитывается в стратегии эксплуатации для создания тормозного момента в электроустановке. Таким образом, рекуперация может осуществляться уже в диапазоне свободного хода (ход педали без обычной силы торможения) педали тормоза, прежде чем будет создано непосредственно гидравлическое давление в тормозной системе. Для улучшения дозирования свободный ход был увеличен на 4 мм.

Для обеспечения оптимальной рекуперации необходимо в точности соблюдать место установки датчика хода педали.

Принцип действия
На педали тормоза находится постоянный магнит, который при задействовании тормоза обводится на датчике хода педали. В датчике в рамках диапазона измерений находится два датчика Холла, которые при обводе магнита вызывают соответствующее выходное напряжение (эффект Холла). На основании этого сигнала регулируется рекуперация.

1 датчик хода педали тормоза
2 постоянный магнит
A расстояние от магнита до датчика
B начало диапазона измерений (конечное положение педали тормоза)
C конец диапазона измерений
D диапазон измерений
Миниатюры:
Нажмите на изображение для увеличения
Название: Датчик хода педали тормоза.jpg
Просмотров: 1960
Размер:	61.4 Кб
ID:	72998   Нажмите на изображение для увеличения
Название: Принцип действия.jpg
Просмотров: 1844
Размер:	33.9 Кб
ID:	72999  
12.12.2023, 22:23   #8
AUTOBODY Repair
В этом автомобиле присутствует еще какое то средство контроля нажатия педали тормоза и управление включением стоп сигналов!!!
Так как датчик, который вы описали был нами отсоеденён. Также был нами отсоеденён датчик находящийся непосредственно на главном тормозном цилиндре. Тем не менее управление стоп сигналами и запуском двигателя все равно работало при нажатии на педаль тормоза.
Вопрос в том, где этот третий датчик или иное средство управления стоп сигналами и санкционирование запуска двигателя?
13.12.2023, 10:05   #9
AUTOBODY Repair
Я прошу прощения если для решения данного вопроса я не создал новую тему. На подобных ресурсах я новичок и плохо пока ориентируюсь.
13.12.2023, 13:13   #10
Владимир Маркин
Аватар для Владимир Маркин
Усиление тормозного привода Cayenne S Hybrid
В Cayenne S Hybrid используется дополнительный электрический вакуумный насос, который может предоставить необходимое давление в тормозной системе даже при остановленном двигателе. Это так, если Cayenne S Hybrid работает только в электрическом режиме, едет накатом или находится в автоматическом режиме старт-стоп.

1 электрический вакуумный насос
2 механический вакуумный насос
3 к усилителю тормозного привода
Миниатюры:
Нажмите на изображение для увеличения
Название: Структура.jpg
Просмотров: 1804
Размер:	145.4 Кб
ID:	73000  

Метки
cayenne, hybrid, вакуум, вакуумный, гибрид, давление, датчик, диапазон, запуск, инструкция, насос, недостоверный, педаль, привод, сигнал, стоп, тормоз, тормозной, ход, электрический



Левый уголок Похожие темы Правый уголок
Тема Автор Раздел Ответов Последнее сообщение
[92A] Ошибка датчика хода педали тормоза Cayenne S Hybrid (92AAM1) Иван_ Электрооборудование 4 09.06.2021 11:57
[92A] P220900 Датчик NOx 1, ряд 1, отопление, недостоверный сигнал Владимир Маркин Система питания 0 11.01.2021 23:40
P0071 Датчик наружной температуры, недостоверный сигнал Владимир Маркин Система кондиционирования 0 20.12.2019 21:51
[95B] P274100 Датчик температуры трансмиссионного масла 2, недостоверный сигнал Владимир Маркин Трансмиссия, АКПП, МКПП 0 21.11.2019 22:45
[970] P01E400 Датчик 3 температуры ОЖ, недостоверный сигнал Владимир Маркин Двигатель 0 18.04.2019 23:11



Powered by vBulletin® Version 3.8.7
Copyright ©2000 - 2025, vBulletin Solutions, Inc. Перевод: zCarot
Все права на материалы, находящиеся на сайте, охраняются в соответствии с законодательством РФ.
При любом использовании материалов сайта, письменное согласие обязательно.
Торговые марки, логотипы и марки услуг, размещенные на данном сайте, являются собственностью их владельцев.
CayService.ru не связан с Porsche AG или PCNA. ©2025 CayService.ru. Все права защищены.
Яндекс.Метрика