Правила форума Clear

9PA производство 2003>>2006 (L) Главный жгут проводки, ремонтные работы (9PA)

19.02.2015, 22:30   #1
Владимир Маркин
Аватар для Владимир Маркин
Главный жгут проводки, ремонтные работы (9PA)

Предварительные работы
1. Отсоединить АКБ.
2. Снять правую облицовку под передней панелью.
3. Снять переднюю правую обшивку бокового элемента.
4. Снять каркас переднего правого сиденья.

Главный жгут проводки, дополнительные работы
Дополнительные работы, основной жгут проводов (точки соединения A и B) – зона правого порога


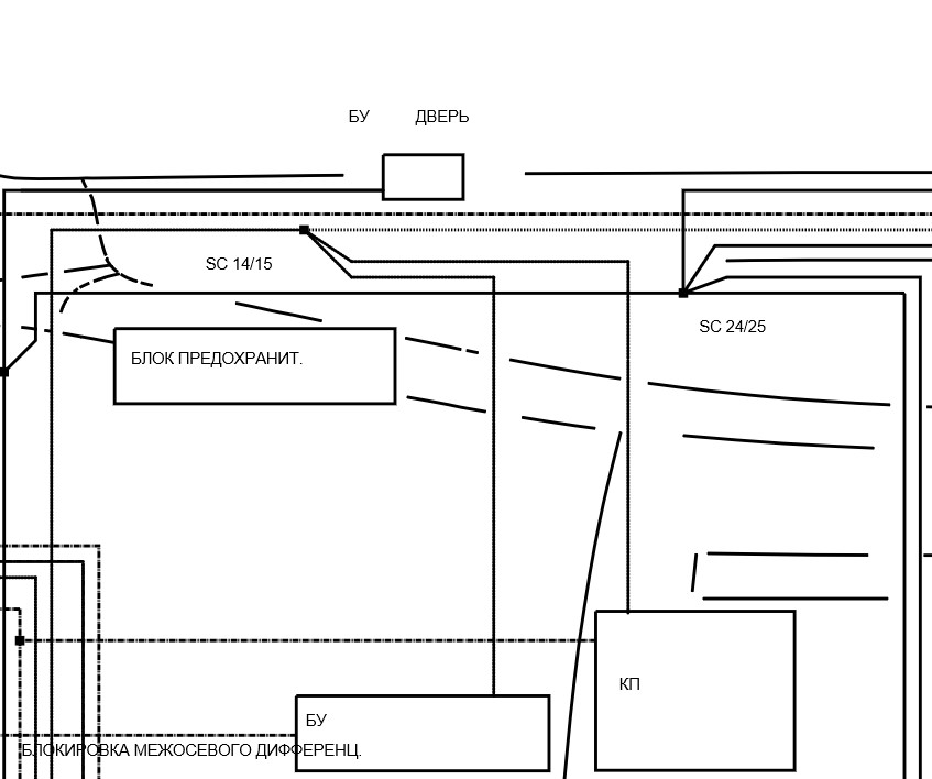
Обзор: точки соединения – блоки управления
A - Точка соединения SC 14/15
B - Точка соединения SC 24/25

1. Слегка отогнуть ковровое покрытие и звукоизоляцию -A- в переднем правом пространстве для ног.
2. Приподнять ковровое покрытие -A- на правой стороне порога и откинуть внутрь.
3. Извлечь из зажима и вскрыть оболочку основного жгута проводов -B- .
4. Удалить четыре хомута и освободить основной жгут проводов.

информация
Коррозию можно опознать по тому, что жилы не блестят, а выглядят оксидированными или потускневшими.

5. Удалить изоляцию со всех точек соединения (от 4 до 8, в зависимости от комплектации автомобиля) и проверить точки соединения на наличие коррозии.
5.1. Коррозия обнаружена — продолжить с пункта 6.
5.2. Коррозия не обнаружена — продолжить с пункта 9.

информация
Для того, чтобы избежать замены проводов, необходимо заново последовательно обжать точки соединения.

информация
Расположение проводов см. в электросхеме.

6. Обрезать кусачками-бокорезами одну из вскрытых точек соединения -A- настолько, чтобы коррозии больше не наблюдалось, и зачистить концы проводов. Жилы должны блестеть и не быть оксидированными или потускневшими.

информация
Отдельные этапы работы по зачистке, обжатию, усадке/изолированию электрических проводов следует выполнять с особой тщательностью.
Необходимо учитывать и соблюдать указания по зачистке, обжатию, усадке/изолированию электрических проводов.
Перед началом работ следует изготовить образцы для обжима.

7. Обжать зачищенные концы проводов точки соединения обжимными втулками и ручными обжимными щипцами из комплекта для ремонта жгутов проводов Cayenne Nr.155-2.
8. Последовательно обрезать, зачистить и заново обжать все остальные точки соединения с признаками коррозии.
9. Изолировать все точки соединения подходящим усадочным шлангом -A- и тщательно обработать промышленным феном со специальной форсункой (рекомендованные аксессуары для ремкомплекта жгутов проводов) для защиты от воды.
10. Проложить основной жгут проводов и закрепить четырьмя новыми хомутами. Обрезать концы хомутов.
11. Установить оболочку основного жгута проводов -B- .
12. Установить на место ковровое покрытие -A- на правой стороне порога.
13. Если необходимо после попадания влаги оставить автомобиль для сушки на 3 – 4 часа (можно на ночь) в сушильной камере при температуре ок. 60 °C.
14. Установить на место ковровое покрытие и звукоизоляцию -A- в переднем правом пространстве для ног.

Дополнительные работы
1. При обнаружении капель воды определить причины появления влаги.
2. Установить каркас правого переднего сидения.
3. Установить обивку правой передней боковины.
4. Установить облицовку под передней панелью справа.
5. Произвести действия, предусмотренные после отключения аккумуляторной батареи.
Миниатюры:
Нажмите на изображение для увеличения
Название: 97091116.gif
Просмотров: 669
Размер:	20.0 Кб
ID:	10228   Нажмите на изображение для увеличения
Название: 97091135.gif
Просмотров: 618
Размер:	31.8 Кб
ID:	10229   Нажмите на изображение для увеличения
Название: w4191001.gif
Просмотров: 617
Размер:	11.1 Кб
ID:	10230   Нажмите на изображение для увеличения
Название: w4191002.gif
Просмотров: 606
Размер:	22.0 Кб
ID:	10231   Нажмите на изображение для увеличения
Название: w4191003.gif
Просмотров: 623
Размер:	13.8 Кб
ID:	10232  

Нажмите на изображение для увеличения
Название: w4191004.gif
Просмотров: 627
Размер:	21.3 Кб
ID:	10233   Нажмите на изображение для увеличения
Название: w4191005.gif
Просмотров: 610
Размер:	21.1 Кб
ID:	10234   Нажмите на изображение для увеличения
Название: w4191006.gif
Просмотров: 632
Размер:	21.8 Кб
ID:	10235  
19.02.2015, 22:49   #2
Владимир Маркин
Аватар для Владимир Маркин
Ремонт главного жгута проводки (разъем PSM)
Миниатюры:
Нажмите на изображение для увеличения
Название: NR.155-3.gif
Просмотров: 643
Размер:	12.9 Кб
ID:	10237   Нажмите на изображение для увеличения
Название: 97091007.gif
Просмотров: 624
Размер:	21.1 Кб
ID:	10238   Нажмите на изображение для увеличения
Название: 97091009.gif
Просмотров: 589
Размер:	39.7 Кб
ID:	10239   Нажмите на изображение для увеличения
Название: 97091001.gif
Просмотров: 631
Размер:	54.0 Кб
ID:	10240   Нажмите на изображение для увеличения
Название: 97091011.gif
Просмотров: 609
Размер:	38.6 Кб
ID:	10241  

Нажмите на изображение для увеличения
Название: 97091015.gif
Просмотров: 612
Размер:	15.8 Кб
ID:	10242   Нажмите на изображение для увеличения
Название: 97091003.gif
Просмотров: 631
Размер:	43.7 Кб
ID:	10243   Нажмите на изображение для увеличения
Название: 97091005.gif
Просмотров: 579
Размер:	22.8 Кб
ID:	10244   Нажмите на изображение для увеличения
Название: 97091013.gif
Просмотров: 577
Размер:	27.5 Кб
ID:	10245   Нажмите на изображение для увеличения
Название: 97091018.gif
Просмотров: 565
Размер:	17.7 Кб
ID:	10246  

Нажмите на изображение для увеличения
Название: 97091016.gif
Просмотров: 595
Размер:	14.4 Кб
ID:	10247   Нажмите на изображение для увеличения
Название: 97091020.gif
Просмотров: 590
Размер:	24.1 Кб
ID:	10248   Нажмите на изображение для увеличения
Название: 97091021.gif
Просмотров: 591
Размер:	18.5 Кб
ID:	10249   Нажмите на изображение для увеличения
Название: 97091023.gif
Просмотров: 617
Размер:	15.5 Кб
ID:	10250   Нажмите на изображение для увеличения
Название: 97091017.gif
Просмотров: 588
Размер:	14.6 Кб
ID:	10251  

Нажмите на изображение для увеличения
Название: 97091022.gif
Просмотров: 600
Размер:	33.6 Кб
ID:	10252   Нажмите на изображение для увеличения
Название: 97091019.gif
Просмотров: 577
Размер:	16.1 Кб
ID:	10253   Нажмите на изображение для увеличения
Название: 97091012.gif
Просмотров: 584
Размер:	38.5 Кб
ID:	10254   Нажмите на изображение для увеличения
Название: 97091014.gif
Просмотров: 570
Размер:	27.5 Кб
ID:	10255   Нажмите на изображение для увеличения
Название: 97091006.gif
Просмотров: 573
Размер:	22.6 Кб
ID:	10256  

Нажмите на изображение для увеличения
Название: 97091004.gif
Просмотров: 568
Размер:	43.3 Кб
ID:	10257   Нажмите на изображение для увеличения
Название: 97091002.gif
Просмотров: 540
Размер:	53.7 Кб
ID:	10258   Нажмите на изображение для увеличения
Название: 97091010.gif
Просмотров: 576
Размер:	39.5 Кб
ID:	10259   Нажмите на изображение для увеличения
Название: 97091008.gif
Просмотров: 579
Размер:	21.1 Кб
ID:	10260  
21.05.2020, 15:19   #3
Krewedk0
Сообщение от Владимир Маркин Посмотреть сообщение
Обзор: точки соединения – блоки управления
A - Точка соединения SC 14/15
B - Точка соединения SC 24/25
Подскажите пожалуйста, где можно найти информацию по точкам соединения, и их расположению?
21.05.2020, 15:23   #4
Владимир Маркин
Аватар для Владимир Маркин
Сообщение от Krewedk0 Посмотреть сообщение
Подскажите пожалуйста, где можно найти информацию по точкам соединения, и их расположению?
На схеме Porsche. Называется программа WDS https://forum.cayservice.ru/showthre...%D1%8B+porsche
21.05.2020, 21:21   #5
Krewedk0
Сообщение от Владимир Маркин Посмотреть сообщение
На схеме Porsche. Называется программа WDS https://forum.cayservice.ru/showthre...%D1%8B+porsche
Я конечно извиняюсь, но не могу найти. Уже всё там облазил. Взять к примеру точку SC 14/15, нигде упоминания о ней не нашёл. ((
21.05.2020, 23:29   #6
Krewedk0
Если не сложно, подскажите в каком разделе искать.
22.05.2020, 20:50   #7
Владимир Маркин
Аватар для Владимир Маркин
Сообщение от Krewedk0 Посмотреть сообщение
Если не сложно, подскажите в каком разделе искать.
Раздел 23А
Топология CAN
Миниатюры:
Нажмите на изображение для увеличения
Название: Топология CAN.jpg
Просмотров: 592
Размер:	74.3 Кб
ID:	31031  
23.05.2020, 22:12   #8
Krewedk0
Сообщение от Владимир Маркин Посмотреть сообщение
Раздел 23А
Топология CAN
Спасибо!
Значит расположение примерно соответствует данной карте?
Я так понимаю, sc 20/21 где-то под торпедо?
Миниатюры:
Нажмите на изображение для увеличения
Название: can2.png
Просмотров: 574
Размер:	90.2 Кб
ID:	31090  
24.05.2020, 13:05   #9
Владимир Маркин
Аватар для Владимир Маркин
Сообщение от Krewedk0 Посмотреть сообщение
Значит расположение примерно соответствует данной карте?
Конечно соответствует


Сообщение от Krewedk0 Посмотреть сообщение
Я так понимаю, sc 20/21 где-то под торпедо?
Верно.
24.05.2020, 20:18   #10
Krewedk0
Спасибо, Владимир!
Буду искать.

Метки
porsche, главный, жгут



Левый уголок Похожие темы Правый уголок
Тема Автор Раздел Ответов Последнее сообщение
[9PA] Вода-враг для проводки! Владимир Маркин Электрооборудование 24 29.07.2020 13:23
Продам жгут проводов виктор бар Установка и переоснащение (Tequipment) 0 02.07.2013 04:06
Продам жгут проводов виктор бар Кузов 0 02.07.2013 04:03
Схема проводки управления панарамного люка scotland Электрооборудование 8 18.07.2011 19:20
Повреждение проводки грызунами Владимир Маркин Электрооборудование 12 31.12.2009 03:46



Powered by vBulletin® Version 3.8.7
Copyright ©2000 - 2025, vBulletin Solutions, Inc. Перевод: zCarot
Все права на материалы, находящиеся на сайте, охраняются в соответствии с законодательством РФ.
При любом использовании материалов сайта, письменное согласие обязательно.
Торговые марки, логотипы и марки услуг, размещенные на данном сайте, являются собственностью их владельцев.
CayService.ru не связан с Porsche AG или PCNA. ©2025 CayService.ru. Все права защищены.
Яндекс.Метрика