Сообщение от
Владимир Маркин
Так отключите и замерьте ток покоя актуальный
напряжение акб дома 12,9 в машине отключенной 12,72 , при снятие панели андроида JVC 12,73
Добавлено через 2 минуты
Сообщение от
Владимир Маркин
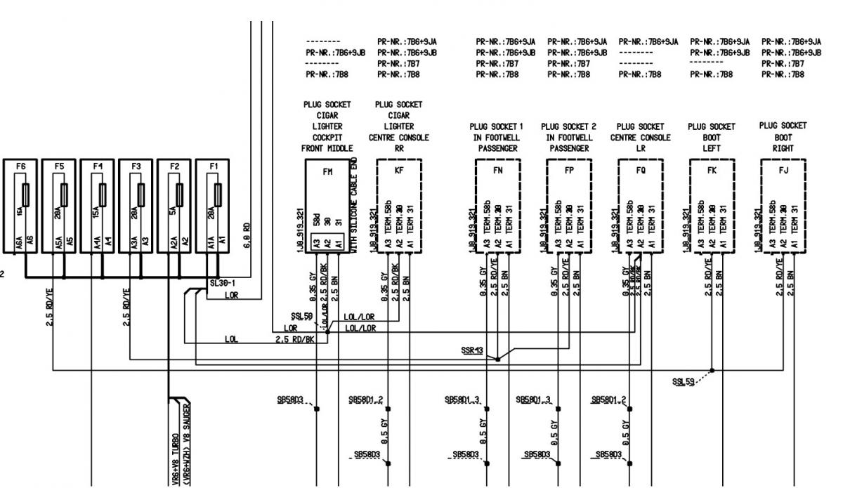
Левая сторона блока предохранителей передней панели
спасибоу!!!!
Добавлено через 22 минуты
жду ночь, завтра опять замерю